Casa I - Loteamento Belmont Park
DESCRIÇÃO
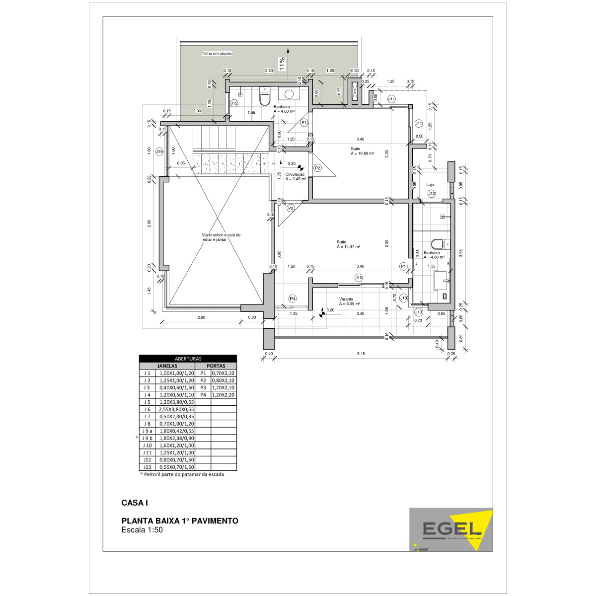
Casa em Steel Frame a ser construída no Loteamento Belmont Park, bairro Oriental, sendo 2 pavimentos, 1 suíte e dois quartos com um banheiro e sacada no pavimento superior. No pavimento térreo serão sala de estar/jantar com cozinha integrada, lavabo, lavanderia, varanda com churrasqueira e abrigo para dois carros.
CARACTERÍSTICAS
3 quartos, Sendo 1 suíte
Abrigo de carros
Área de Churrasqueira
Área de Serviço
Banheiro
Cozinha
Lavabo
Sacada
Sala de Estar/Jantar
LOCALIZAÇÃO
Loteamento Belmont Park, Lote 4 - Rua A lado direito

FICOU INTERESSADO?
Entre em contato conosco e fale com um de nossos corretores!
